
Campus House Architecture
architecture | hand drafting | AI visualization
This work is from one of my architectural courses that I’ve recently taken. The semester was focused on designing a small residence on a real site on the school’s south campus. I went with a Mid-Century Modern inspired two-level home. The mnml.ai and Midjourney renderings, while not a precise match to the elevations, were created by custom prompts that would mirror the spirit of the dwelling including the Long Leaf Pines which are native to North Carolina.
Site Plan
We were required to use a piece of land on the south campus that was left as a green space. We had the option of keeping or removing any vegetation and walkway lighting. I selected an area that was half in/half out of the wooded area because I wanted the structure to feel like it was part of the campus. To achieve this I place an outdoor deck from the main/second level over an existing walkway. This would give the house some relationship to the campus while still keeping the main level relatively private, especially at night when there would be few, if any students on the campus.


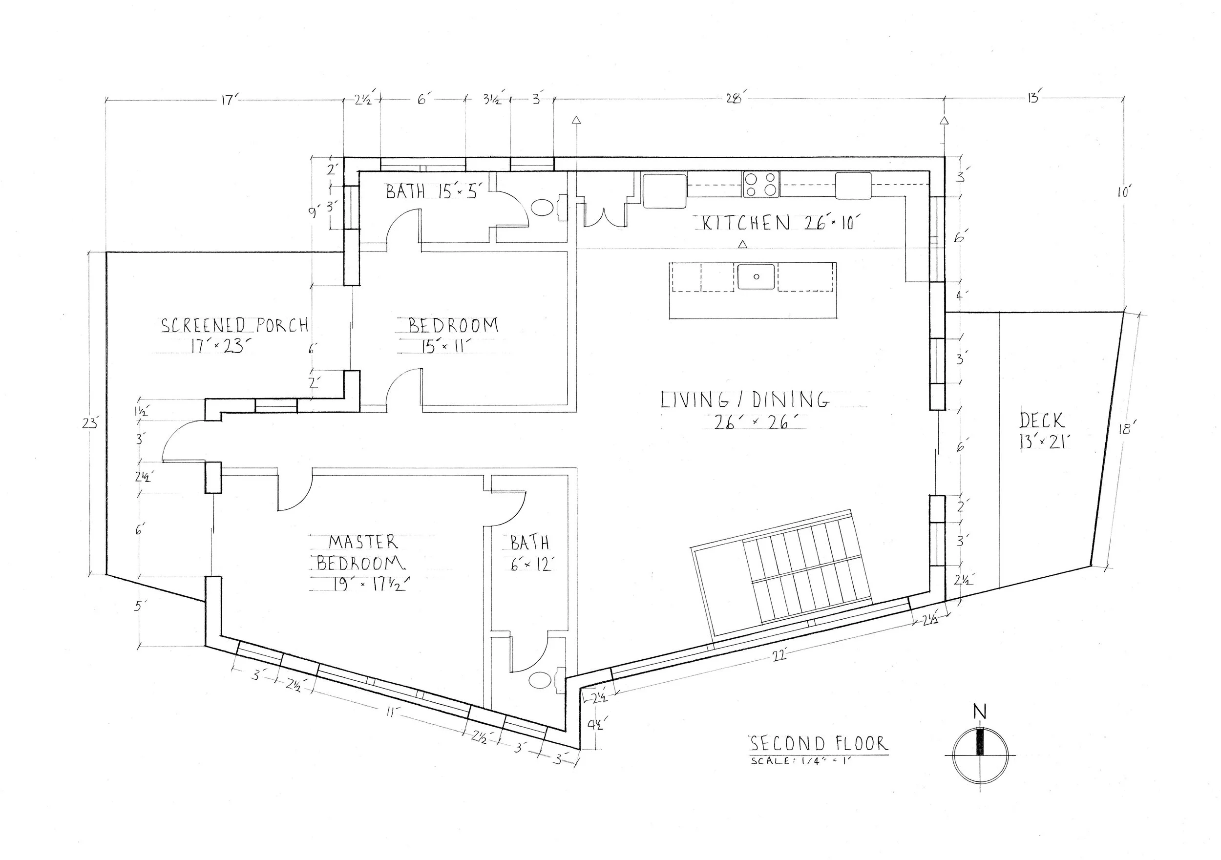
Floor Plan + Elevations
Once I had the floor plans created I needed to draft the elevations. To do this I had to construct a 3D model of the home at 1/4” = 1’ scale out of foam core. This helped me accurately draw the various angles and slopes of the roof configuration I had in mind to keep with the Mid-Century Modern style.








Rendering + Visualization
I’ve been experimenting with a lot of AI visualization tools. Two I feel are really well suited for architectural applications are Midjourney and a lesser-known one called mnml.ai.
On the left below is my original elevation of the house. On the right is a pure AI intrepretation of it using mnml.ai – it has a feature that takes basic drawings and turns them into photo-realistic images using promts to guide style, color, environment, etc.
The images below those two are all Midjourney, created with prompts I wrote myself to bring the concept to life.






